
Скляна Симфонія
Ця модерністська резиденція в Одесі поєднує скло, дерево й бетон у стриманій композиції. Два поставлені об'єми та виразний плаский дах формують просторі інтер'єри, а розсувне скління відкриває дім до саду. Багаторівневий ландшафт і літні зони зберігають рівновагу між затишком усередині та легкістю життя надворі, втілюючи стриманість сучасної української архітектури.
Розташування
Одеса
Year
2016
Архітектор
Олена Солодовник
Категорія
Приватні будинки
Студія
Студія Декарт

Project Narrative
Ця модерністська резиденція в Одесі поєднує скло, дерево й бетон у стриманій композиції. Два поставлені об'єми та виразний плаский дах формують просторі інтер'єри, а розсувне скління відкриває дім до саду. Багаторівневий ландшафт і літні зони зберігають рівновагу між затишком усередині та легкістю життя надворі, втілюючи стриманість сучасної української архітектури.
At a Glance
- Архітектор
- Олена Солодовник
- Розташування
- Одеса
- Студія
- Студія Декарт
- Категорія
- Приватні будинки
- Year
- 2016
Деталі
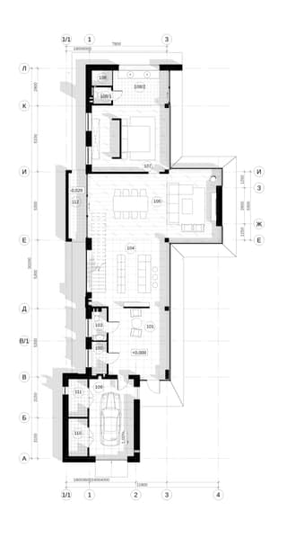
Загальна площа
304.92 квадратних метрів
Поверхи
2
Площа земельної ділянки
0.04328 гектарів
Площа будівлі
233.24 квадратних метрів
Площа озеленення
71.81 квадратних метрів
Житлова площа
132.88 квадратних метрів
Gallery







Всі зображення проекту






