
Будинок Амбар
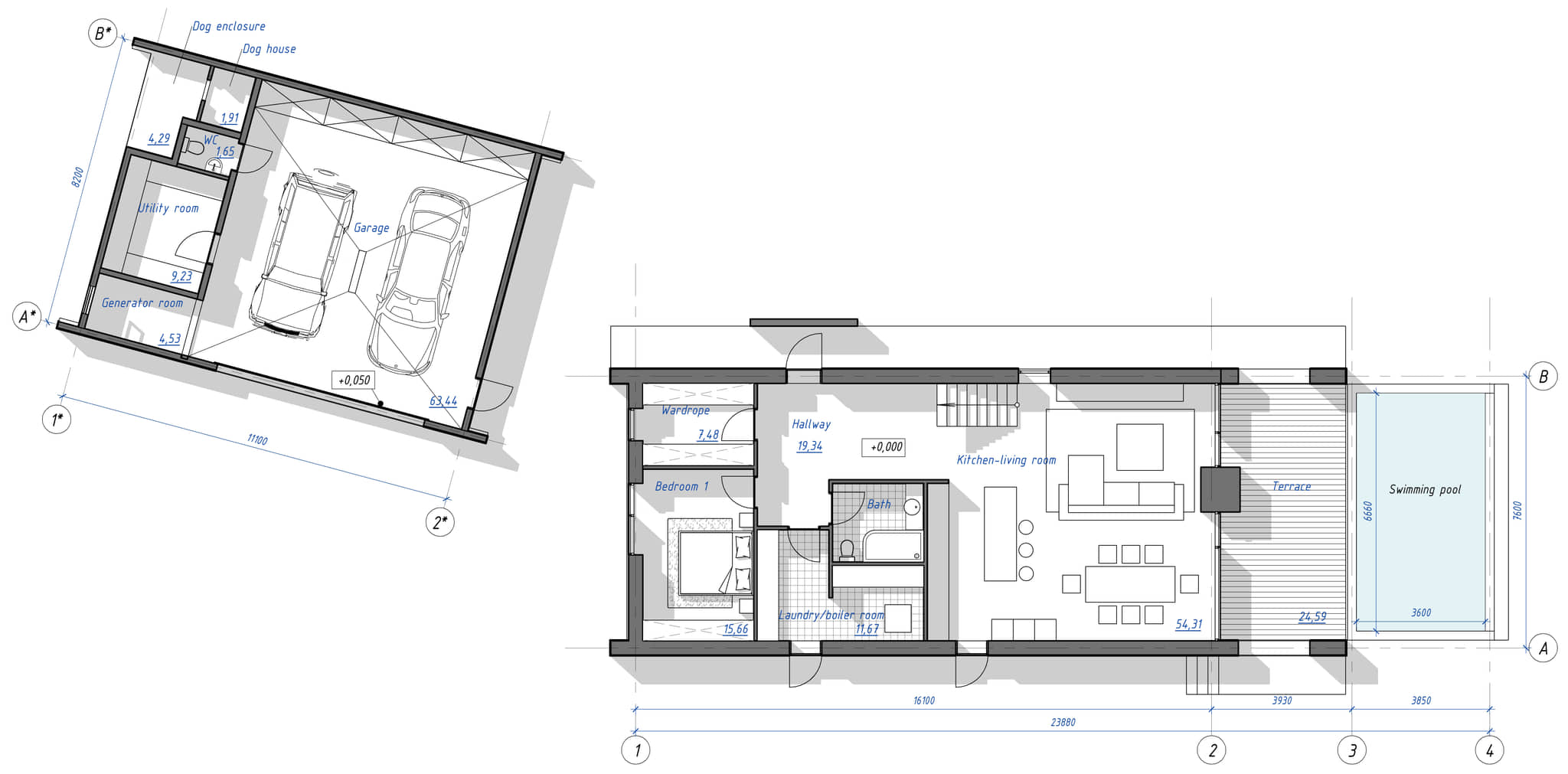
Будинок «Амбар» переосмислює американський заміський дім у чітких двосхилих об'ємах із окремим гаражем. Усередині просторі житлові зони переходять у велику кухню та терасу, а приватні кімнати дарують спокій. Продумані деталі на кшталт вольєра та господарських приміщень допомагають організувати побут, зберігаючи теплий, розслаблений характер оселі.
Розташування
США
Year
2022
Архітектор
Олена Солодовник
Категорія
Приватні будинки
Студія
Студія Декарт

Project Narrative
Будинок «Амбар» переосмислює американський заміський дім у чітких двосхилих об'ємах із окремим гаражем. Усередині просторі житлові зони переходять у велику кухню та терасу, а приватні кімнати дарують спокій. Продумані деталі на кшталт вольєра та господарських приміщень допомагають організувати побут, зберігаючи теплий, розслаблений характер оселі.
At a Glance
- Архітектор
- Олена Солодовник
- Розташування
- США
- Студія
- Студія Декарт
- Категорія
- Приватні будинки
- Year
- 2022
Деталі
Загальна площа
308.11 квадратних метрів
Поверхи
2
Кухня-вітальня
54.31 квадратних метрів
Гараж
63.44 квадратних метрів
Тераса
24.59 квадратних метрів
Вольєр для собаки
6.20 квадратних метрів
Gallery
Всі зображення проекту











