
Urbanism and ConceptsOdessa
Hellenic Oasis: Greek Park Fountain
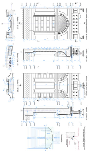
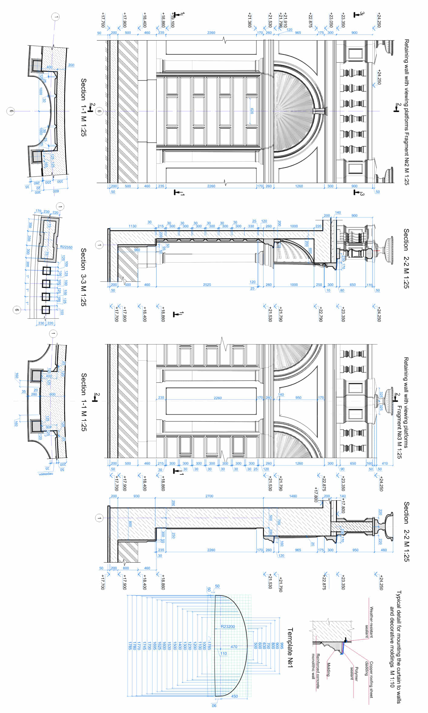
This fountain concept for Odesa's Greek Park choreographs water, light, and sculptural stone into a new civic gathering point. The radial composition anchors promenades and provides shaded seating, turning the park's heart into a stage for cultural events and everyday pause.
Location
Odessa
Year
2016
Architect
Olena Solodovnik
Category
Urbanism and Concepts
Studio
Dekart Studio

Project Narrative
This fountain concept for Odesa's Greek Park choreographs water, light, and sculptural stone into a new civic gathering point. The radial composition anchors promenades and provides shaded seating, turning the park's heart into a stage for cultural events and everyday pause.
At a Glance
- Architect
- Olena Solodovnik
- Location
- Odessa
- Studio
- Dekart Studio
- Category
- Urbanism and Concepts
- Year
- 2016
Details
Project Type
Urban Concept
Status
Concept
Gallery









All Project Images








