
ბუნების წიაღში
ეს ერთსართულიანი სახლი გარემოსთან ჰარმონიაში დგას, ხედებს ფართო წიბოებით და მოძრავი მინის პანელებით ჩარჩოავს. სინათლით სავსე სამზარეულო-მისაღები პავილიონი გადის ტერასაზე, ხოლო საძინებლები მშვიდ ფრთაში იყრის თავს პირადულობისთვის. ბუნებრივი მასალები და ცალკე სამუშაო ოთახი ხელს უწყობს ცხოვრებას, რომელიც თავისუფლად გადადის შრომიდან დასვენებასა და ბუნებაში ყოფნაზე.
მდებარეობა
აშშ
Year
2022
არქიტექტორი
ოლენა სოლოდოვნიკი
კატეგორია
ინდივიდუალური სახლები
სტუდია
დეკარტის სტუდია

Project Narrative
ეს ერთსართულიანი სახლი გარემოსთან ჰარმონიაში დგას, ხედებს ფართო წიბოებით და მოძრავი მინის პანელებით ჩარჩოავს. სინათლით სავსე სამზარეულო-მისაღები პავილიონი გადის ტერასაზე, ხოლო საძინებლები მშვიდ ფრთაში იყრის თავს პირადულობისთვის. ბუნებრივი მასალები და ცალკე სამუშაო ოთახი ხელს უწყობს ცხოვრებას, რომელიც თავისუფლად გადადის შრომიდან დასვენებასა და ბუნებაში ყოფნაზე.
At a Glance
- არქიტექტორი
- ოლენა სოლოდოვნიკი
- მდებარეობა
- აშშ
- სტუდია
- დეკარტის სტუდია
- კატეგორია
- ინდივიდუალური სახლები
- Year
- 2022
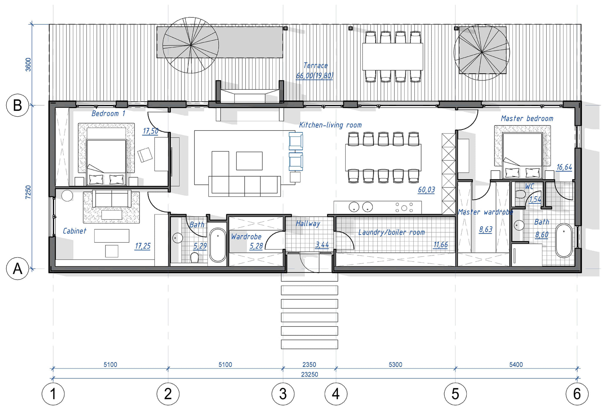
დეტალები
საერთო ფართობი
175.66 კვადრატული მეტრი
სართულები
1
სამზარეულო-მისაღები ოთახი
60.03 კვადრატული მეტრი
მთავარი საძინებელი
16.64 კვადრატული მეტრი
კაბინეტი
17.25 კვადრატული მეტრი
ტერასა
66.00 კვადრატული მეტრი
Gallery




პროექტის ყველა სურათი



